DỰ ÁN: NHÀ XƯỞNG BÌNH DƯƠNG
CÁC CÔNG TÁC ĐƯỢC THỰC HIỆN:
– Mô hình hệ thống Điện.
– Mô hình hệ thống Cấp thoát nước.
– Mô hình hệ thống PCCC.
– Mô hình hệ thống Thông gió-Điều hoà.
– Phối hợp (Combine) các hệ thống Cơ điện nêu trên.
CHỈNH CHU TRÊN TỪNG SẢN PHẨM
Hãy đến với chúng tôi
Để bạn luôn trải nghiệm cảm giác yên tâm, hãy giao phó và tin tưởng đội ngũ với gần 10 năm kinh nghiệm trong nghề. Luôn chú tâm vào chất lượng sản phẩm, trau chút trong từng đường ống, từng thiết bị để luôn cho ra bản vẽ hoàn hảo nhất, đem đến sự hài lòng và niềm tin vững chắc từ quý vị.
Get in touchDỰ ÁN: KHÁCH SẠN VEN BIỂN ĐÀ NẴNG
HẠNG MỤC: MÔ HÌNH HÓA, PHỐI HỢP VÀ SHOPRAWING BẢN VẼ THI CÔNG
DỰ ÁN: NHÀ Ở KẾT HỢP CHO THUÊ, LÊ TRỌNG TẤN-HÀ NỘI
HẠNG MỤC: THIẾT KẾ ĐIỆN-NƯỚC-ĐIỀU HÒA
BẢN VẼ CẤP NGUỒN ĐIỂN HÌNH
BẢN VẼ ĐIỀU HÒA ĐIỂN HÌNH
BẢN VẼ THOÁT NƯỚC ĐIỂN HÌNH
BẢN VẼ CẤP NƯỚC ĐIỂN HÌNH
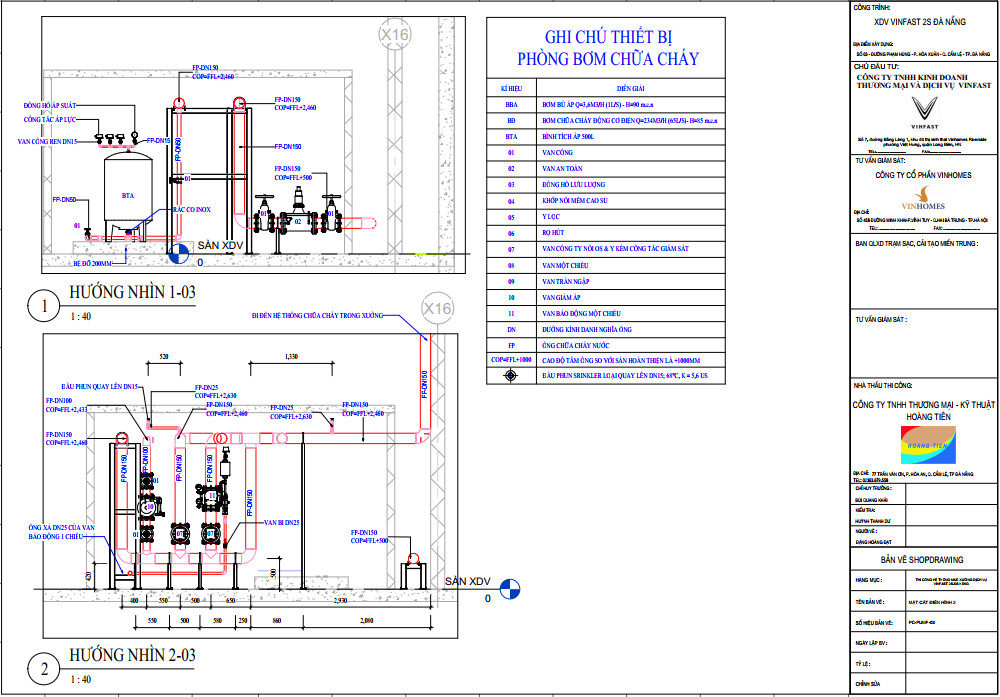
DỰ ÁN: XƯỞNG-SHOWROOM VINFAST-CẨM LỆ, ĐÀ NẴNG
HẠNG MỤC: MÔ HÌNH & SHOP THI CÔNG HỆ THỐNG CHỮA CHÁY, HỆ THỐNG CẤP THOÁT NƯỚC
VIEW 3D PHÒNG BƠM CẤP NƯỚC
MẶT BẰNG THOÁT NƯỚC KHU SHOWROOM
VIEW 3D THOÁT NƯỚC KHU SHOWROOM
DỰ ÁN: CÁC PHÒNG KỸ THUẬT NHÀ CAO TẦNG HÀ NỘI
HẠNG MỤC: MÔ HÌNH HÓA CÁC PHÒNG BƠM CHILLER, PHÒNG BƠM CHỮA CHÁY, PHÒNG BƠM CẤP NƯỚC, PHÒNG KỸ THUẬT ĐIỆN NHÀ CAO TẦNG
PHỐI CẢNH
PHÒNG KỸ THUẬT ĐIỆN
PHỐI CẢNH
PHÒNG BƠM NƯỚC CẤP
PHỐI CẢNH
PHÒNG BƠM WATER CHILLER
PHỐI CẢNH
PHÒNG BƠM PCCC
DỰ ÁN: HÀNH LANG CHUNG CƯ HÀ NỘI
HẠNG MỤC: MÔ HÌNH HÓA, PHỐI HỢP HỆ THỐNG CƠ ĐIỆN VÀ SHOPDRAWING BẢN VẼ THI CÔNG
DỰ ÁN: HỆ THỐNG TG-ĐHKK NHÀ XƯỞNG BÌNH DƯƠNG
HẠNG MỤC: MÔ HÌNH HÓA VÀ PHỐI HỢP HỆ THỐNG THÔNG GIÓ-ĐIỀU HÒA NHÀ XƯỞNG
BẢN VẼ
HỆ THỐNG ỐNG GIÓ VÀ THIẾT BỊ CÁC CỤM FCU ĐẶT TRONG CÁC KHU NHÀ CHỨC NĂNG
BẢN VẼ
HỆ THỐNG ỐNG, BƠM, VAN, MÁY ĐIỀU HÒA KHU VỰC PHÒNG BƠM
BẢN VẼ
HỆ THỐNG ỐNG VÀ THIẾT BỊ KHU VỰC PHÒNG AHU
DỰ ÁN: BỆNH VIỆN ĐÀ NẴNG
HẠNG MỤC: MÔ HÌNH HÓA VÀ SHOPDRAWING BẢN VẼ THI CÔNG PHÒNG BƠM CHILLER GIẢI NHIỆT GIÓ

